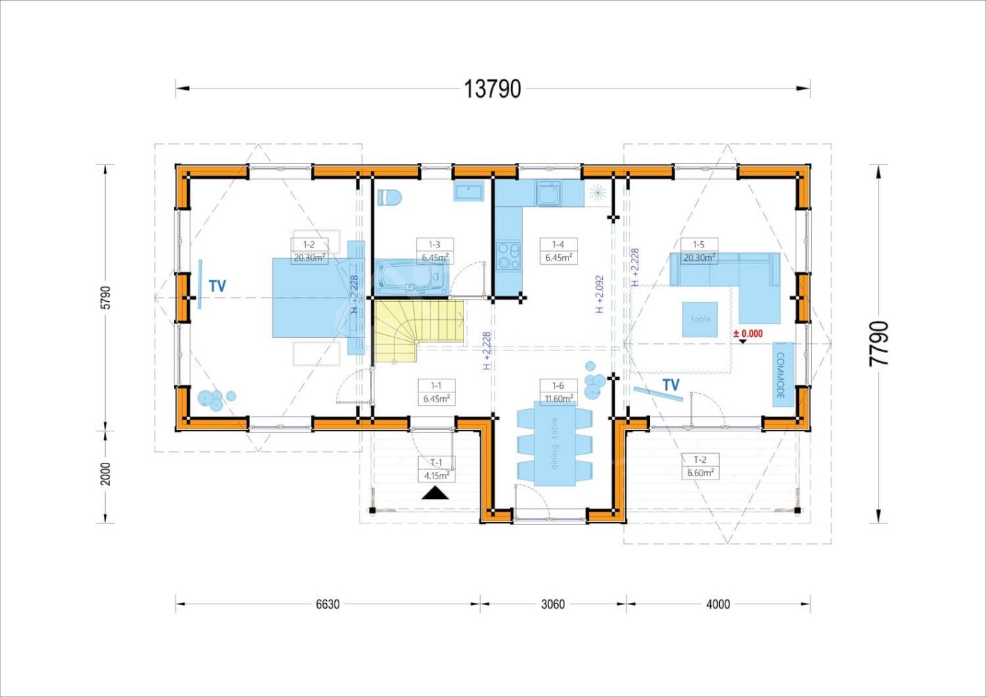
PREMIUM-Wohnhaus
• Professionelle, hochwertige PVC-Fenster und -Türen. • Wärmewiderstandskennwerte und Dämmstärke der Wände, des Daches uns der Boden . • Zusätzliche Dachbelastung (kann Solarpaneele halten, höhere Schneebelastung ermöglichen). Ab einer Wandstärke von 66 mm, ist das Dachdecken mit Dachsteinen, Dachziegeln möglich. Das elegante und geräumige Holzhaus DACHSTEIN, das von der niederländischen Architektur inspiriert wurde, verkörpert das ideale Zuhause für eine Familie. Es bietet ein ausgewogenes Verhältnis zwischen offenen Räumen, die eine einfache Kommunikation mit Ihren Lieben ermöglichen und individuellen Zimmern, die allen ihre Privatsphäre garantieren. Gestalten Sie den Wohnraum so, wie Sie es bevorzugen – genießen Sie viele, offene Flächen, größere Räume oder schaffen Sie sich kompaktere und gemütlichere Bereiche – die Möglichkeiten dieses Modells sind wahrlich vielfältig.
Gratis Energieausweis!!
Der Bausatz nach ÖNORM für ihr Eigenheim mit Komplettsatz dreifach verglaste PVC-Fenster und Außentüren, anthrazitgrau. Mittlerer U-Wert 0,23 W/m²K
- Komplettsatz dreifach verglaste PVC-Fenster und Außentüren, anthrazitgrau
- 66 mm starke Blockbohlen
- inkl. Isolierung aus Mineralwolle
- inkl. Dampf und Windsperre
- kostenloser Energieausweis
- verstärkte Dachkonstruktion
- Bausatz nach ÖNORM
- Montage durch österreichische Firma bereits ab 27.000,- €
PREMIUM isolierte Wärmedämmung
Dieses Fertighaus aus Holz verfügt über eine Wärmedämmung in Wohnqualität. Dank der 230 mm dicken Isoliermaterial, die für die Dachisolierung verwendet werden, sowie den isolierten Böden (170 mm) und Wänden (150 mm), wird ein Höchstmaß an Wohnkomfort gewährleistet. Egal, ob Sie für einen kurzen Aufenthalt kommen oder das Haus als Hauptwohnsitz nutzen werden, Sie werden sich das ganze Jahr über warm und behaglich fühlen.
